Page suivante
Page précédente
Rothau (67570)

Appartement 3 pièce(s) 2 chambre(s) 95.17 m²

1
119 900 €
Réf LDVAP60000838

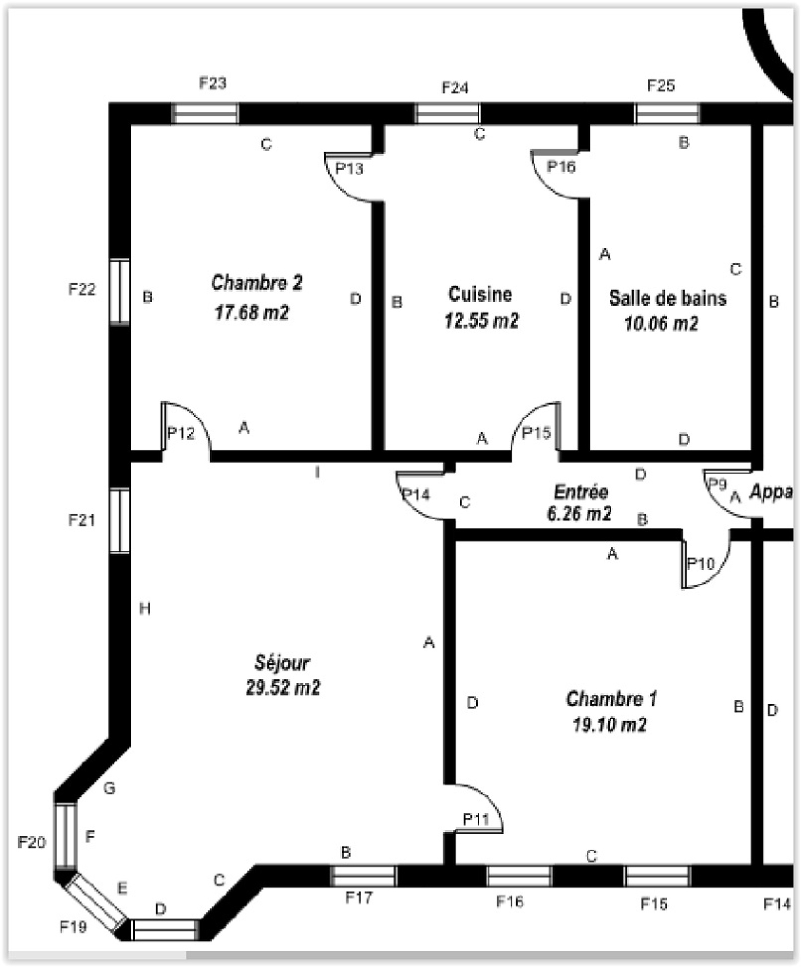
A vendre en exclusivité, ce spacieux et lumineux appartement de 3 pièces de 95m², situé au 2ème étages sur 4 dans un immeuble d'exception

Situé au coeur de la ville de Rothau, vous trouverez à proximité de ce bien: des écoles, commerces, pharmacie, cinéma et une gare.


Les atouts de ce bien :

- un spacieux salon séjour, avec oriel, de 29,5m² lumineux tout au long de la journée

- deux grandes chambres confortables de 19 et 18m²

- une cuisine indépendante de 12,5m² avec placards de rangement et évier

- une salle de bain de 10m² avec baignoire, vasque et WC attenant

- une cave privative vient compléter ce bien


Cet appartement allie volume, luminosité et fonctionnalité.


Vous pourrez stationner dans la cour (places collectives limitées) ou dans la rue avoisinante.


Chauffage : fioul

Eau chaude : ballon éléctrique individuel


Possibilité d'acquérir ce bien pour une résidence principale ou un investissement locatif.


Des travaux d'amélioration ont été réalisés sur l'appartement afin de passer en C sur le DPE (plus d'informations en nous contactant).


Un bien rare sur le marché de Rothau, à visiter sans tarder!

Bilan énergétique

Diagnostics énergetiques
A propos de ce bien Caractéristiques de ce bien
  • Surface 95,17 m²
  • carrez 95,17 m²
  • 2 chambre(s)
  • 1 salle(s) de bain
  • construit en 1750
  • cuisine séparée
  • Chauffage collectif : radiateur (fioul)
  • 2ème étage
  • 4 étage(s)
  • cave
  • interphone

Financier

Informations financières
Prix de vente 119 900 € Les honoraires d'agence seront intégralement à la charge du vendeur

Simulation

Calcul des mensualités
* Champs obligatoires
Delphine Lasseigne Négociatrice