Page suivante
Page précédente
Rothau (67570)

Appartement 3 pièce(s) 2 chambre(s) 91.46 m²

1
125 500 €
Réf LDVAP60000837

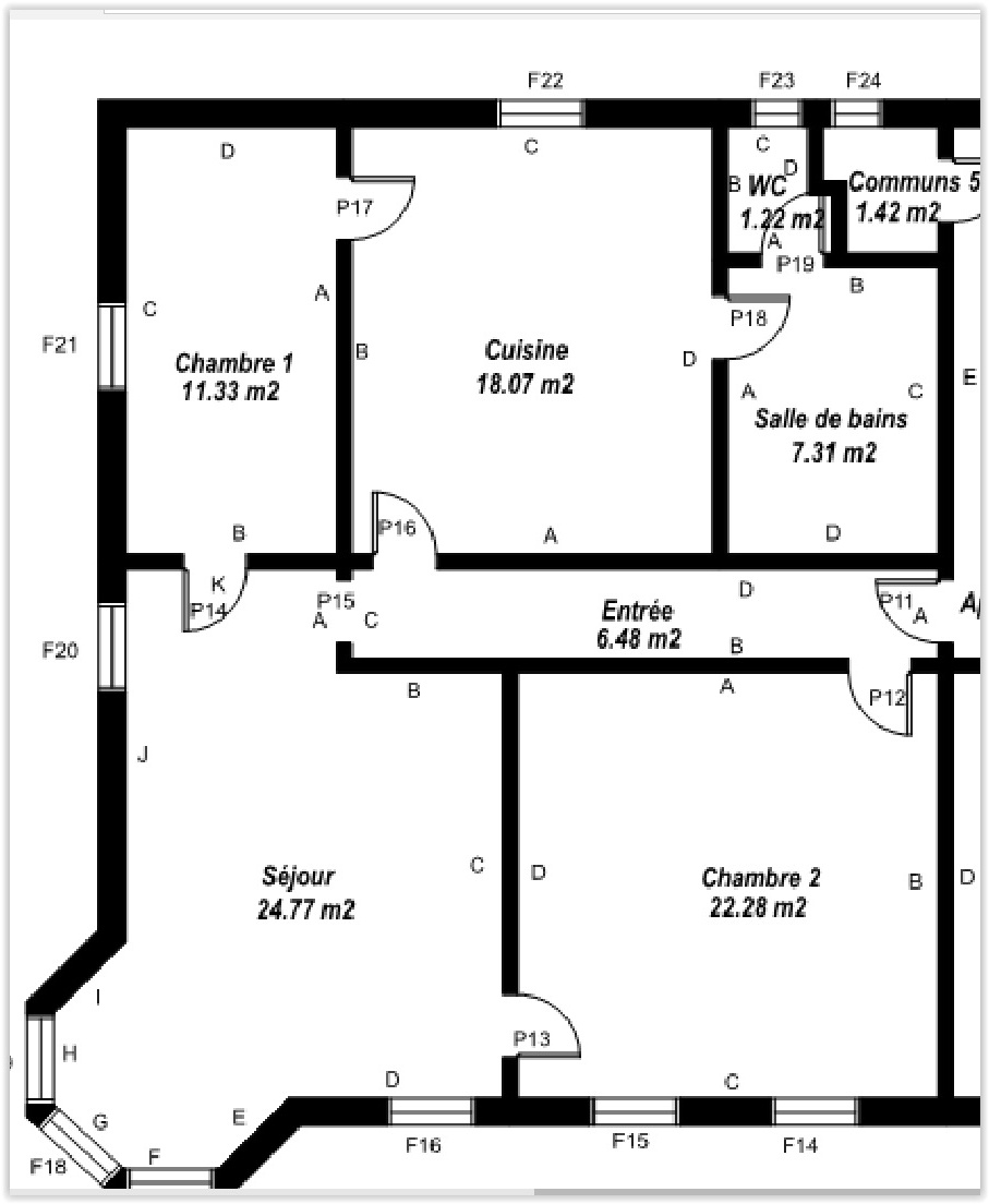
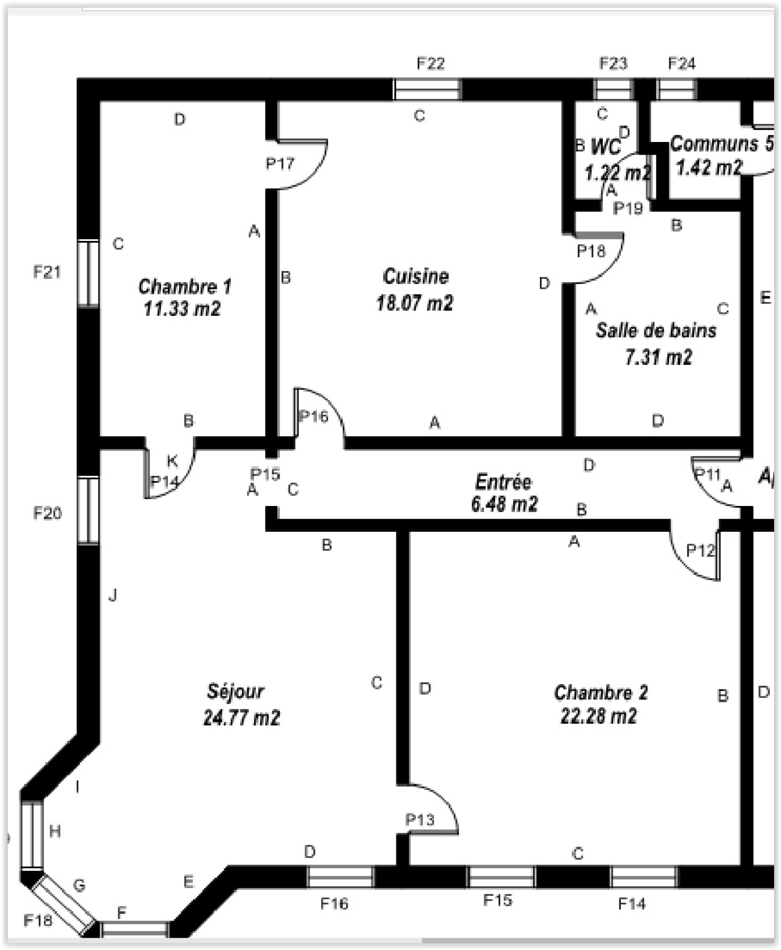
A vendre en exclusivité, ce spacieux et lumineux appartement de 3 pièces de 91m², situé au 1er étage sur 4, dans un immeuble d'exception.

Situé au coeur de la ville de Rothau, vous trouverez à proximité de ce bien: des écoles, commerces, pharmacie, cinéma et une gare.


Les atouts de ce bien :

- un spacieux salon séjour, avec oriel, de 25m² lumineux tout au long de la journée

- deux grandes chambres confortables de 11 et 22m²

- une cuisine indépendante de 18m² avec placard de rangement et évier

- une salle de bain de 7m² avec baignoire, vasque et WC attenant

- une cave privative vient compléter ce bien


Cet appartement allie volume, luminosité et fonctionnalité.


Vous pourrez stationner dans la cour (places collectives limitées) ou dans la rue avoisinante.


Chauffage : fioul

Eau chaude : ballon éléctrique individuel


Possibilité d'acquérir ce bien pour une résidence principale ou un investissement locatif.

Des travaux d'amélioration ont été réalisés sur l'appartement afin de passer en C sur le DPE (plus d'informations en nous contactant).


Un bien rare sur le marché de Rothau, à visiter sans tarder!

Bilan énergétique

Diagnostics énergetiques
A propos de ce bien Caractéristiques de ce bien
  • Surface 91,46 m²
  • 2 chambre(s)
  • 1 salle(s) de bain
  • construit en 1750
  • Chauffage collectif : radiateur (fioul)
  • 1er étage
  • 4 étage(s)
  • cave
  • interphone

Financier

Informations financières
Prix de vente 125 500 € Les honoraires d'agence seront intégralement à la charge du vendeur

Simulation

Calcul des mensualités
* Champs obligatoires
Delphine Lasseigne Négociatrice